Unique Products for the Home Owner, Contractor, Builder, and Architect 631-465-9960
Unique Products for the Home Owner, Contractor, Builder, and Architect631-465-9960

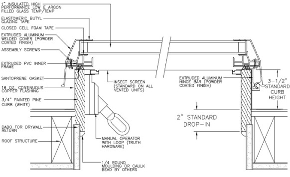
SUPREME PRO STANDARD AND CUSTOM PRO SERIES SKYLIGHTS

 

 

Standard Features:

  • 1″ Tempered Insulated Low E Argon Filled Glass
  • Extruded Aluminum Cover – Fully Welded (not cladding)
  • Bronze Powder Coated Exterior Cover
  • Painted  Pine Curb w/dado for Sheetrock return
  • Thermally Broken PVC frame with internal condensation gutter to weep condensation to the exterior
  • 16 oz Copper Flashing
  • Insect screens in all vented units

Available Options:

  • Pitched and Flat Roof Applications
  • Continuous Copper or Step Flashing Kits
  • Glazing options: Tempered Insulated/ Clear Low E/ Bronze Low E/ Tempered Laminated/Multi-Wall Polycarbonate
  • Cut Flush Curb
  • Replacement Hatches to fit most Skylight Manufacturers
  • Custom Sizes
  • Custom Shapes
  • Factory Mulled Flashing
  • Roof Access Units
  • Convertible from Fixed to Vented
  • Custom Hatch Colors

Accessories:

  • Motorized Operators
  • Manual Operator Poles
  • Pleated Shades
Supreme Skylights
Supreme Brochure.pdf
Adobe Acrobat document [959.4 KB]
warranty
Supreme.pdf
Adobe Acrobat document [45.6 KB]
631-465-9960
powered by BirdEye

Morningstar Doors and Windows
215 Adams Blvd.

Farmingdale, NY 11735
Phone: 631-465-9960
Fax: 631-465-9961

 

Monday-Friday: 8:00am-5:00pm

Saturday: 8:00am-12:00pm

Sunday: closed

Morningstar is a contributor to their cause.
Print | Sitemap
© Morningstar Doors and Windows,Inc.

This website was created using IONOS MyWebsite. //

Call

E-mail

Directions